Opportunité à Saisir aux Gets| Duplex Vue Pistes + Garage Privé (16 m2)
Les Gets 74260
0
Et si c'était enfin le bien qui coche toutes les cases ?
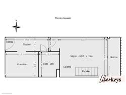
Un duplex avec vue panoramique sur les pistes, garage fermé et accès rapide aux pistes de ski? ce combo rare fait de ce bien une opportunité à ne pas laisser passer dans la station prisée des Gets, au coeur des Portes du Soleil.
Ce que vous allez adorer:
-emplacement exclusif à 2 min des pistes;
-garage fermé de 16 m²;
-séjour lumineux avec cuisine ouverte équipée;
-balcon exposé Sud-Est;
-2 espaces nuit distincts: un coin nuit séparé & une chambre à l'étage;
-à seulement 1h de l'aéroport international de Genève;
-48,46 m² au sol (41,61 m² loi Carrez).
Les biens avec ces atouts sont rares aux Gets? et partent souvent avant même d'être remarqués. Contactez-moi dès maintenant pour plus d'infos ou une visite !
La copropriété :
-Pas de procédure en cours
-Nombre de lots : 12
Charges et fiscalité :
- taxe foncière : 686 euros.
- Géorisques : https ://www.georisques.gouv.fr
Les charges de copropriété s'élèvent à 680 € par trimestre et la taxe foncière à 686 € par an.
Montant estimé des dépenses annuelles d'énergie pour un usage standard : entre 1250 € et 1720 € par an. Prix moyens des énergies indexés sur l'année 2021 (abonnements compris).
Ce bien vous plaît ? Visitez-le virtuellement en 3D sur le site de Liberkeys ou contactez directement votre conseiller. Lazar Ana Maria, agent commercial immatriculé au RSAC de Thonon-les-Bains sous le numéro 978 277 051. Référence annonce : DOM17571. Date de réalisation du diagnostic : 01/08/2023. Les honoraires sont à la charge du vendeur.
48 m²
5 729 €
3
2
1
1
1
1979
Américaine
Ouest
Nord
Oui
Consommations énergétiques
Logement économe
483
Logement énergivore (kWhEP/m2/an)
Émissions de gaz à effet de serre
Faible émission de GES
14
Forte émission de GES(kgeqCO2/m2/an)
Contact Ana maria Lazar
Contacter gratuitement à l'aide du formulaire ci-dessous.